軽井沢・借宿
物件NO.881
取引形態 媒介
価格:1億2500万
写真一覧
基本情報
その他設備
| 種類 | 新築戸建 | ||||||
|---|---|---|---|---|---|---|---|
| 所在地 | 北佐久郡軽井沢町大字長倉 | ||||||
| 交通 | 新幹線「軽井沢」駅より約6.9km(車で約12分)しなの鉄道「中軽井沢」駅より約3.1km(車で約8分) | ||||||
| 土地 | 登記簿 | 403.67㎡ 約122.1坪 | 地目 | 宅地 | 接続状況 | 接道:42条1項1号道路(道路幅員約4.8m)に東側約9m接道 | |
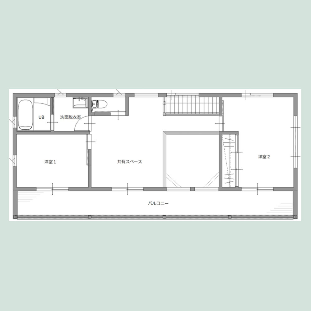
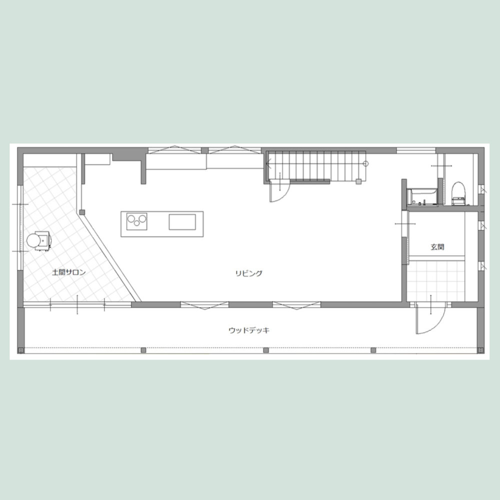
| 建物 | 建築年度 | 完成予定:2026年2月 | 面積 | 125.95㎡ 38.0坪 | |||
| 構造 | 木造軸組2階建+エアパスソーラー工法 | ||||||
| 都市計画 | 非線引区域 | 用途区域 | 第一種住居地域 | 建蔽率 | 60% | 容積率 | 200% |
| 制限 | 法第22条区域、長野県景観条例、軽井沢町自然程対策要綱 | ||||||
| 備考 | 後退:道路後退 2m 隣地後退 1m 諸費用:水道加入金132,000円、下水道負担金 242,500円、表示登記・保存登記費用、固定 資産税の清算金(起算日:4月1日) | ||||||
| 小学校 | 軽井沢西部小学校 1300m 徒歩17分 | 中学校 | 軽井沢中学校 3800m 徒歩50分 | ||||
| アクセス | ツルヤ軽井沢店 3000m 車約8分 | ||||||
| 電気 | 中部電力 | ガス | 個別プロパン | ||||
|---|---|---|---|---|---|---|---|
| 水道 | 町営上水道 | 排水 | 公共下水 | ||||
| 備え付け設備 | 信州木材/床:天然無垢材(栗)/壁:珪藻土/1F全面床暖房 薪ストーブ:アイアンドッグNo.7 /エアコン(リビング・寝室1)/サッシ:トリプルガラス/食 洗器/オーブンレンジ/スマートホーム設備一式/ウォークインクローゼット/家具付き/吹き 抜け/外物置/アウトドアキッチン | ||||||
基本情報
その他設備
| 種類 | 新築戸建 | ||||||
|---|---|---|---|---|---|---|---|
| 所在地 | 北佐久郡軽井沢町大字長倉 | ||||||
| 交通 | 新幹線「軽井沢」駅より約6.9km(車で約12分)しなの鉄道「中軽井沢」駅より約3.1km(車で約8分) | ||||||
| 土地 | 登記簿 | 403.67㎡ 約122.1坪 | |||||
| 地目 | 宅地 | ||||||
| 接続状況 | 接道:42条1項1号道路(道路幅員約4.8m)に東側約9m接道 | ||||||
| 建物 | 建築年度 | 完成予定:2026年2月 | |||||
| 面積 | 125.95㎡ 38.0坪 | ||||||
| 構造 | 木造軸組2階建+エアパスソーラー工法 | ||||||
| 都市計画 | 非線引区域 | 用途区域 | 第一種住居地域 | ||||
| 建蔽率 | 60% | 容積率 | 200% | ||||
| 制限 | 法第22条区域、長野県景観条例、軽井沢町自然程対策要綱 | ||||||
| 備考 | 後退:道路後退 2m 隣地後退 1m 諸費用:水道加入金132,000円、下水道負担金 242,500円、表示登記・保存登記費用、固定 資産税の清算金(起算日:4月1日) | ||||||
| 小学校 | 軽井沢西部小学校 1300m 徒歩17分 | ||||||
| 中学校 | 軽井沢中学校 3800m 徒歩50分 | ||||||
| アクセス | ツルヤ軽井沢店 3000m 車約8分 | ||||||
| 電気 | 中部電力 | ガス | 個別プロパン | ||||
|---|---|---|---|---|---|---|---|
| 水道 | 町営上水道 | 排水 | 公共下水 | ||||
| 備え付け設備 | 信州木材/床:天然無垢材(栗)/壁:珪藻土/1F全面床暖房 薪ストーブ:アイアンドッグNo.7 /エアコン(リビング・寝室1)/サッシ:トリプルガラス/食 洗器/オーブンレンジ/スマートホーム設備一式/ウォークインクローゼット/家具付き/吹き 抜け/外物置/アウトドアキッチン | ||||||